Menu
Banksia House
Banksia House

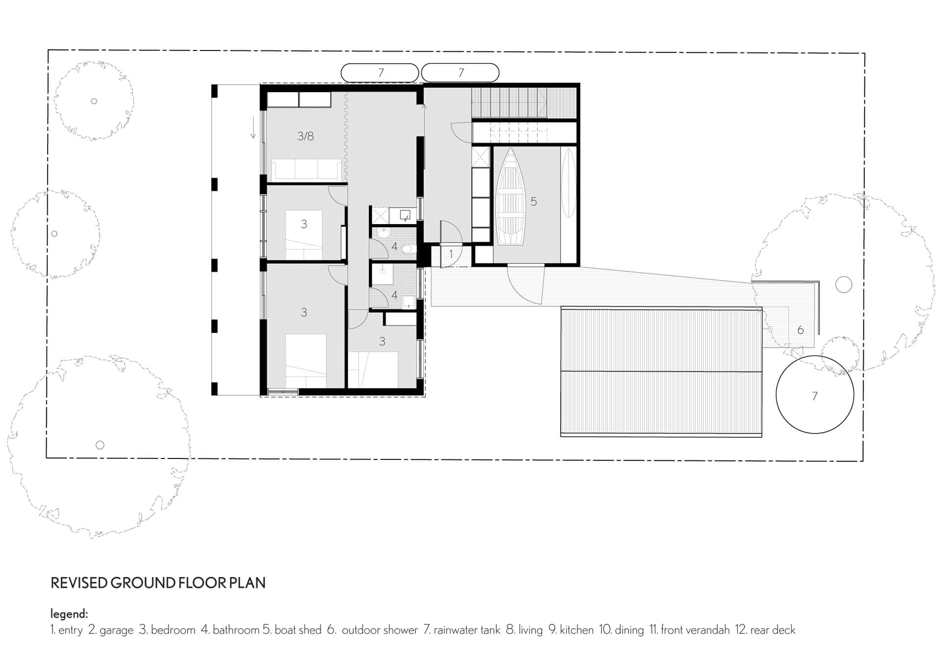
Banksia House is the renovation of an existing two storey beach house that’s used primarily as a gathering place for the client’s wider family.

As the family has grown the constraints of the existing house were experienced more strongly, primarily the number of bedrooms, cramped social areas, inefficient stair position, low storage, and lack of large outdoor covered space.

The house is located in the small town of Red Rock on the NSW north coast, an unassuming town solely reliant on rainwater and septic tanks and off the tourist trail. As a result, the front of the house is retained with a rear extension away from the street and out of sight to blend in with the context.

Project Type

House Alterations & Additions

Studio

Josh Mulford Architects

Status

Completed 2020

Banksia House
Banksia House

A folding roof that covers the external deck and new staircase ties into the ridgeline and eaves of the existing roof, focusing framed views to the garden and bush. The large stair window maximises the view and introduces light and ventilation to both upstairs and downstairs.

A long slatted benchseat occupies the position where the previous stair was, and x2 bedrooms were added downstairs through the transformation of the internal garage and repositioning of the stair. The central kitchen is opened up and connected to both the internal dining and external deck.

Banksia House
Banksia House

Low-key and long-lasting materials were utilised that met the tight budget and could endure the harsh elements of saltspray, sun and storms.

Corrugated metal, timber shiplap detailing, v-grooved plywood and timber dowels all create a vertical nature and rhythm to the house that echoes the Australian vernacular and the feel of a traditional Australian beach house. The use of paint and colour avoids the selection of premium timbers to help reduce cost.

Banksia House
Banksia House
Betty House
Betty House
Close

Josh Mulford Architects are a Canberra and Sydney based architecture studio focused on bespoke residential and commercial projects.

We believe in a collaborative approach to design, working with our clients to skilfully guide their project from inception to completion. We are passionate about good design and elegant space-making as a means for enriching our client’s daily lives.

Click on the following publications to find out more:
The Design Files
Habitus Living
The Canberra Times

Nominated Architect: Joshua Mulford
NSW Architecture Registration Number: 9876

Banksia House
Close

Starting a new project or want to collaborate?

Get in touch on 0405 235 334 or email us.

Close